У комплект входить:
Унітаз безобідковий Kroner Armada WHI513636 RIMLESS з сидінням Slim Duroplast / Soft-close / Quick relase KA513636WHIR
Овальна форма та компактні розміри для естетики та практичності.
Безобідкова конструкція Rimless для легкості прибирання та високої гігієнічності.
Потужний потік води із трьома струменями для ідеального очищення.
Виготовлений із непористого фаянсу, стійкого до забруднення та запахів.
Кришка-сидіння Slim Duroplast з Quick Release та Soft-Close для зручності використання.
Антибактеріальний матеріал Duroplast для довговічності та збереження кольору.
Горизонтальний напрямок випуску для зручного монтажу.
Гарантійний термін 120 місяців на унітаз та 24 місяці на сидіння підкреслює високу якість та довговічність.
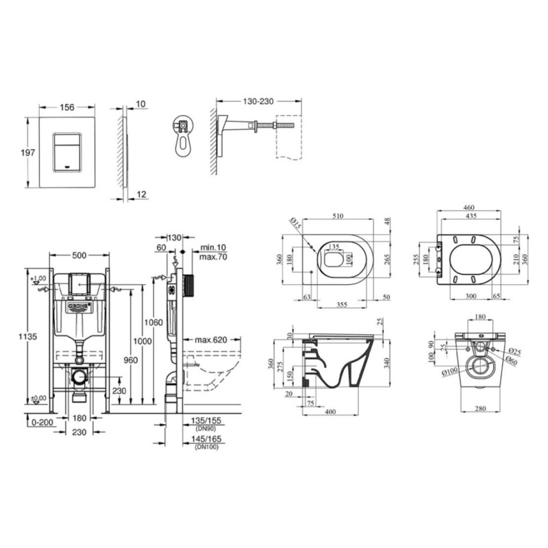
Інсталяція Grohe Solido для унітазу, монтажна висота 1.13 м 38840000
змивний бачок GD 2
для монтажу на стіні або стінній перегородці
самонесна стальна рама із порошковим напиленням
для сухої кладки
із фіксованими підключеннями
швидке регулювання по висоті, закривається
матеріал для кріплення
2 болти для кріплення унітазу
кріплення для кераміки
відстань між болтами 180/230 мм
вихідне коліно O 90 мм
регульована глибина монтажу
редуктор O 90/110 мм
впускний та змивний гарнітури
змивні баки GD 2, 6 - 9 л мають наступні характеристики:
заводське налаштування 6 л і 3 л
пневматичний змивний вентиль із 3 режимами: подвійний змив, старт/стоп, одноразовий змив
підключення води зліва/справа/позаду або зверху
низький рівень шуму (група I відповідно до Німецької специфікації рівня шуму)
з ізоляцією від конденсаційної вологи
?" підключення водопостачання включаючи вбудований кутовий вентиль і гнучкий шланг щільної посадки
під час збирання непотрібні додаткові інструменти для монтажу інспекційного коробу
для вертикального і горизонтального використання
для настінного монтажу замовляйте настінні кріплення 38 558 00M (замовляються окремо)
для монтажу маленьких змивних панелей необхідно замовляти ревізійний короб 40 911 000 (продається окремо
Even Накладна панель змиву 38966000
2 режими змиву: подвійний і старт/стоп
для пневматичного змивного клапана AV1
для вертикального і горизонтального монтажу
156 x 197 мм
із ABS
GROHE Long-Life поверхня
GROHE Water Saving – технологія неперевершеного потоку при економному використанні води
| Характеристики | |
| Гарантія | 132 місяців |
| Колекція | Solido Perfect |
| Країна виробник | Німеччина |
| Поверхня | Синій |
